Rynek/Serce Namysłowa / Lokale / INWESTYCJA (Namysłów)
Namysłów Pokaż na mapie ›
Odświeżone: Wtorek, 17 Marzec, 2026 22:27
250 000 zł
Szczegóły ogłoszenia
- Kategoria: Biura i lokale / Sprzedaż
- Przeznaczenie:Handel i Usługi
- Powierzchnia:160 m2
- Stan:Do gruntownego remontu
- Sprzedaż:Pośrednik
- Cena: 250 000 zł
Opis oferty
Witam , pragnę Państwu zaprezentować Lokal w Budynku mieszkalno-usługowym który mieści się w Namysłowie przy ul.Rynek 4 w samym sercu Namysłowa.Proszę o zapoznanie się z PEŁNYM OPISEM.
Lokal z przyłączem gazowym o powierzchni 160m2 w Księdze Wieczystej , natomiast powierzchnia aktualna to 320m2 ze względu na Zrobioną "Antresolę" na całej powierzchni Lokalu która pełni rolę Piętra.
Nieruchomość do generalnego remontu o wielkim potencjale. Dlaczego.? Już Państwu odpowiadam.
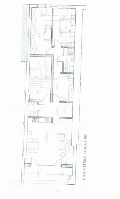
Wysokość lokalu to 6 metrów co Pozwoliło właścicielowi na Zlecenie Projektu który jest widoczny na ostatnich zdjęciach.
Projekt Obejmuje:
Parter: Recepcja z osobnym wejściem do budynku
Pierwsze Piętro: Cztery niezależne Gabinety Lekarskie Każdy z gabinetów ma łazienkę i wszystko co potrzebne do spełnienia wymogów Sanepidu.
Drugie Piętro: Mieszkanie w którym znajdują się 3 rozkładowe pokoje.
Po zrealizowaniu Projektu mamy już 320m2 powierzchni w Księdze Wieczystej
Mieszkanie na Sprzedaż bądź wynajem oraz Gabinety Lekarskie.
Przed Wejściem do Lokalu od strony Rynku znajduję się ok 30 Miejsc Parkingowych.
Elewacja oraz Dach po remoncie w 2014r.
Media: prąd siła, woda, kanalizacja, tel, przyłącze gazowe
Poprzednio: W lokalu znajdowała się Siłownia
Pierwsze piętro: Recepcja / Łazienka / Szatnia / Pokój Menedżerski / Strefa Wolnych Ciężarów
Drugie piętro: Duża Sala Do Aerobiku / Szatnia / Łazienka / Szatnia / Sauna
w lokalu w każdym pomieszczeniu mamy Okna co daje nam sporo naturalnego światła.
Nie ma co czytać to trzeba zobaczyć.
Cena do Negocjacji.
1-Korzystne położenie - w pobliżu granicy z Niemcami i Czechami, w odległości ok. 45 km od autostrady A-4 oraz portów lotniczych (Wrocław - ok. 60 km, Katowice - ok. 120 km).
2-Atrakcyjne tereny inwestycyjne będące Podstrefą Wałbrzyskiej Specjalnej Strefy Ekonomicznej.
3- Dobrze rozwinięta infrastruktura techniczna (znaczne rezerwy wody, energii, gazu, nowoczesna oczyszczalnia ścieków, która posiada rezerwy na przyjęcie 800 m3 ścieków na dobę).
4-Stosujemy zwolnienia z podatku od nieruchomości: Uchwała Nr IX/73/07 Rady Miejskiej w Namysłowie z dnia 31 maja 2007 r. w sprawie zwolnienia z podatku od nieruchomości w ramach pomocy de minimis dla przedsiębiorców tworzących nowe miejsca pracy na terenie gminy Namysłów.
5-Oferujemy nieodpłatną pomoc w załatwianiu formalności inwestycyjnych.
Interesuje Cię zakup tego lokalu.?
Numer oferty: 60/3584/OLS
Sprawdź zainteresowanie tym ogłoszeniem
Wyświetlenia
Data dodania
Ostatnio widziany
Obserwujących
Wysłane zapytania
Odsłony telefonu
Powiadom o podobnych ogłoszeniach
Lokalizacja: Namysłów
Kategoria: Nieruchomości » Biura i lokale » Sprzedaż
Cena: od 212500 zł do 287500 zł Powierzchnia : od 136 m2 do 184 m2
Chcę otrzymywać powiadomienia o nowych ofertach
- Wypromuj ogłoszenie
- Zgłoś naruszenie
- Drukuj ulotkę
- Edytuj/usuń ogłoszenie
- Udostępnij ogłoszenie
- Dodaj na Facebook
































